REALISIERUNG 2023 - 2024
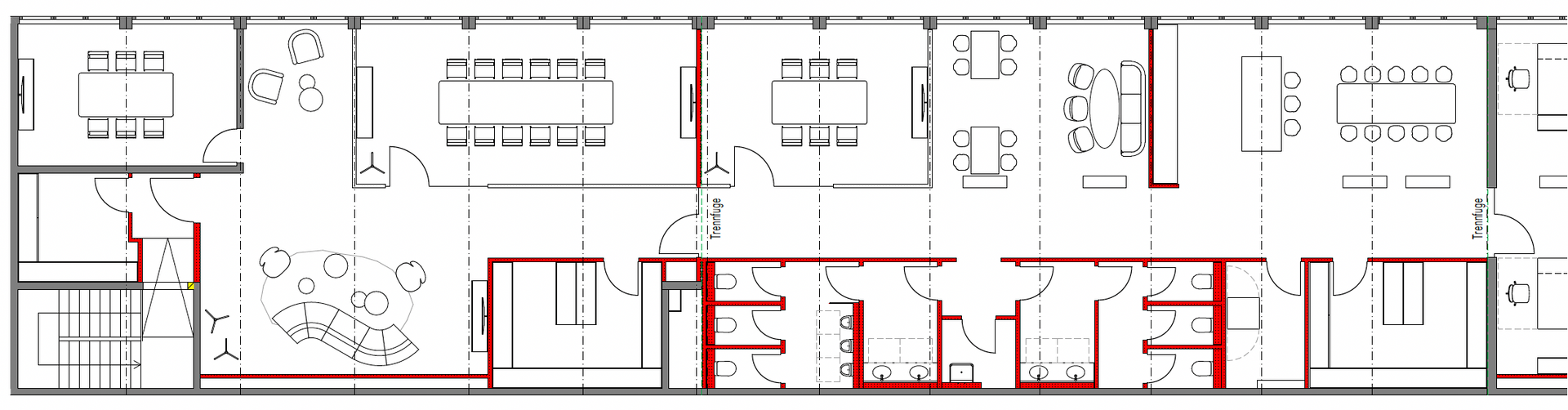
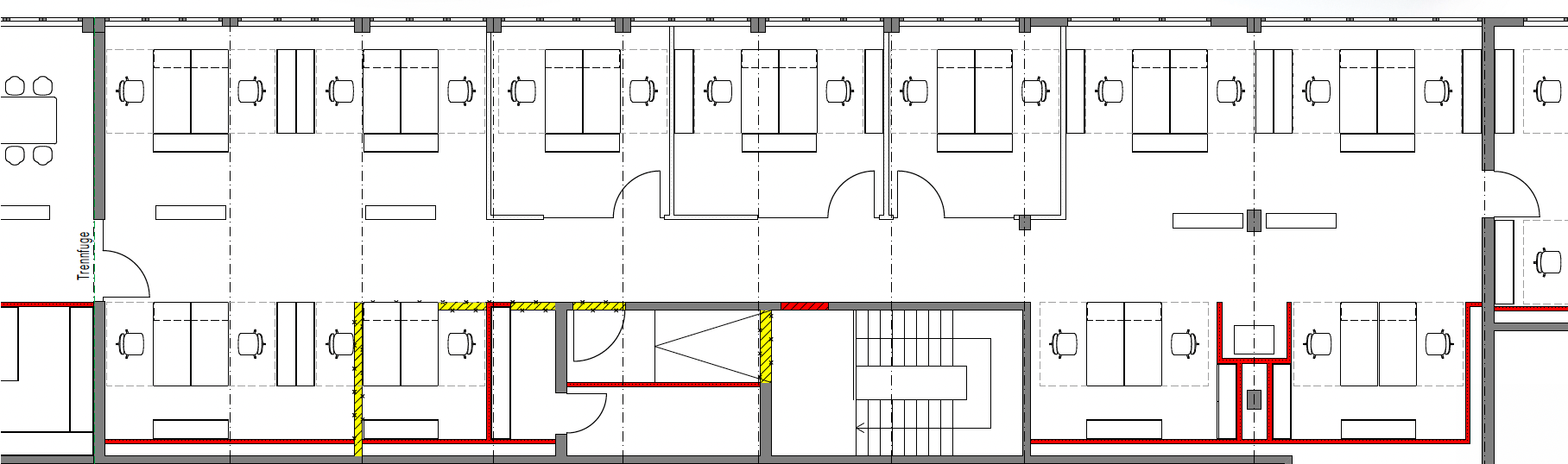
Ausbau einer Brachfläche zu Büroräumen
NF 675 qm
Eine leere Fläche soll wieder zum Leben erweckt werden. Durch die wechselnde Anordnung von offenen Arbeitsbereichen, Aufenthaltsbereichen zur Kommunikation und zum Rückzug, abgetrennten Büroräumen und Besprechungsräumen, wird die Fläche zukünftig allen Anforderungen an eine moderne Arbeitsumgebung gerecht.
Alle Bereiche sind hell gestaltet, Abtrennungen werden durch großzügige Glaswände realisiert, um Transparenz zu schaffen. Die Außenhülle des Gebäudes sowie die Haustechnik werden komplett erneuert. Durch die energetische Sanierung des Gebäudes wird der Komfort deutlich erhöht. Eine eigentlich nutzlose Fläche wird so wieder mit Leben gefüllt.



